Casa semindipendente in vendita

Rovello Porro, Via V. Veneto
€ 198.000
4 locali 4 locali
147 Mq 147 Mq
2 bagni 2 bagni

Casa semindipendente in vendita

Rovello Porro, Via V. Veneto

Descrizione annuncio

ROVELLO PORRO;

Proponiamo in vendita soluzione semi-indipendente, ideale per chi cerca comfort, privacy e spazi ben distribuiti.

L’immobile si presenta in ottime condizioni, grazie ai lavori eseguiti negli ultimi anni: facciata con cappotto termico , infissi doppio vetro PVC e tetto completamente rifatti nel 2023, mentre l’interno è stato ristrutturato nel 2015 con finiture moderne e di qualità.

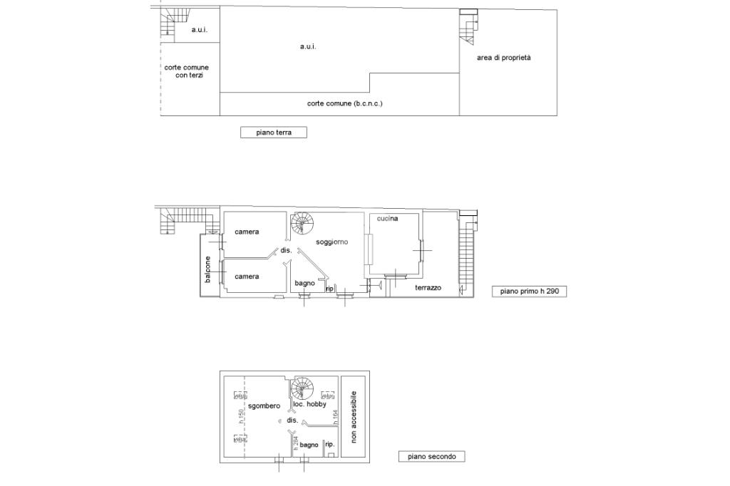
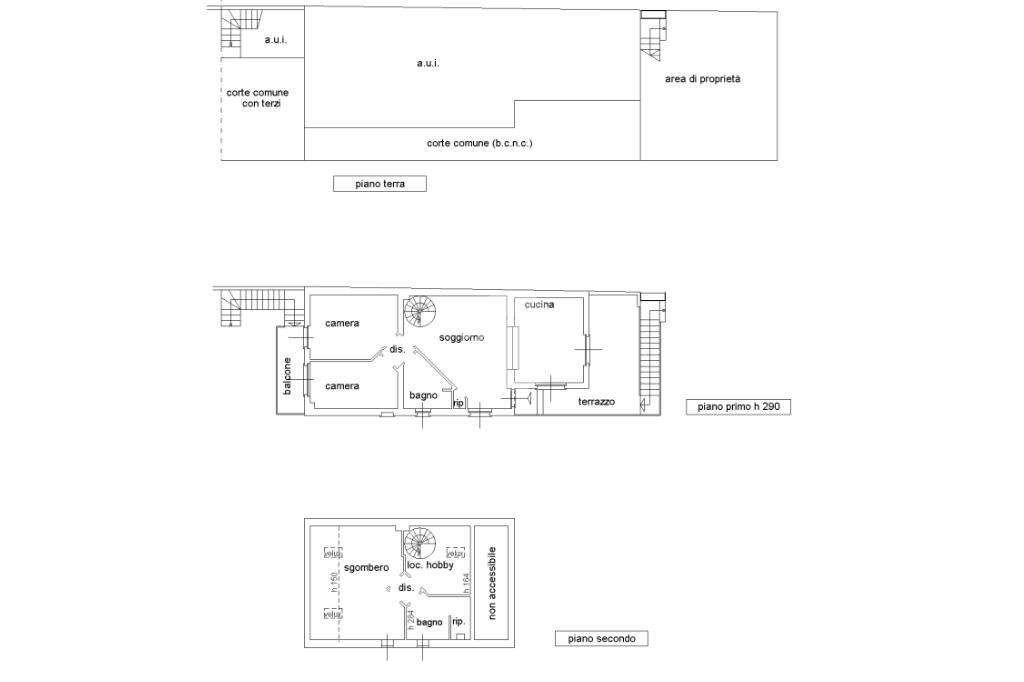
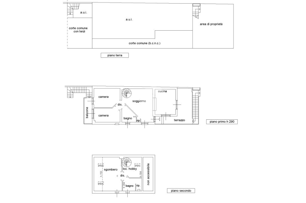
L’appartamento principale, situato al piano primo, è composto da:
• Luminoso soggiorno,
• Cucina abitabile con ampio finestrone e accesso diretto al terrazzo,
• Due camere da letto,
• Bagno con finiture contemporanee.

Una comoda scala interna conduce al locale sottotetto, dove è stata ricavata un’ulteriore camera con cabina armadio, un secondo bagno e un locale hobby/studio, perfetto come spazio relax o smart working.

La casa è dotata di:
• Riscaldamento a pavimento,
• Caldaia a condensazione, impianto climatizzzazione caldo/freddo
• Classe energetica B (ottima efficienza e bassi consumi.

Completano la prorpietà box auto ed area esterna di prorprietà situati al piano terra.

Chiamaci o mandaci un messaggio tramite Whatsapp al numero 351.7099971 e fissa una visione!

Necessiti di una valutazione dell'immobile? Non conosci il reale valore della tua Abitazione? non esitare a contattarci il servizio è GRATUITO

Mostra tutto

Nelle vicinanze

Trasporto pubblico Trasporto pubblico
Saronno
Saronno
3,0 Km
Linea 1 (Prealpi) - Marx centro
Linea 1 (Prealpi) - Marx centro
1,5 Km
Piazzale Marx (Saronno)
Piazzale Marx (Saronno)
1,5 Km
Rovello Porro
Rovello Porro
250 m
Rovellasca-Manera
Rovellasca-Manera
1,6 Km
Ricariche auto elettriche Ricariche auto elettriche
Turate Matteotti | EnelX
1,2 Km
U2 Supermercato Rovello Porro | EnelX
1,5 Km
Turate Garibaldi | EnelX
2,5 Km
Parcheggio stazione Gerenzano Turate | EnelX
2,5 Km
Lidl Gerenzano
2,6 Km
Scuole Scuole
Scuola primaria di Rovello Porro
690 m
Scuola secondaria di primo grado "Antonio Rosmini"i
1,1 Km
IAL Lombardia
1,6 Km
Scuola Primaria Gianni Rodari
2,0 Km
Istituto Prealpi
2,1 Km
Farmacia Farmacia
Farmacia
280 m
Parafarmacia della Dottoressa Alessandra Venturini
1,9 Km
Farmacia Santa Maria
2,2 Km
Rossetti Mamoli
2,3 Km
Farmacia Comunale 2
2,4 Km
Ospedali Ospedali
LABORATORIO ANALISI MEDICHE GESTIONE LABORATORI SCIENTIFICI LE BETULLE PUNTO PRELIEVI:
1,7 Km
Ospedale di Saronno
2,5 Km
Villaggio Amico
2,7 Km
Supermercati Supermercati
U2
1,5 Km
Eredi di Garbelli Rita
1,6 Km
Unes
1,7 Km
Alimentari Dalla Pozza
2,0 Km
Unione Cooperativa di Consumo
2,1 Km
Negozi Negozi
Pasticceria "Dolciaria Saronnese"
1,7 Km
Il Fornaio - un mondo di pane
2,3 Km
La Corte del Fornaio
2,4 Km
Sorelle Ramonda
2,4 Km
Panetteria
2,5 Km
Bar Bar
Havana Club
1,5 Km
Bar Stazione
1,6 Km
Bar
1,7 Km
Bar Sala Biliardi Inverni Gianmaria
1,9 Km
better(le viole)
1,9 Km
Ristoranti Ristoranti
Trattoria Santuario
670 m
Gatsby
1,8 Km
La Vecchia Fiorentina
1,8 Km
Sirtaki
2,2 Km
Al 67 Bistrot
2,2 Km
Mostra tutto

Caratteristiche

Rif.:
61132645
Piano:
1 di 1 (Piano medio)
Box:
1
Posti auto:
2
Balconi:
1
Terrazzi:
1
Mostra tutto
Prezzo Prezzo
€ 198.000
Rata mutuo Rata mutuo
€ 913 / mese
Spese annue Spese annue
€ 0
Proponi il tuo prezzoProponi il tuo prezzo

Classe Energetica

B
B
B
B
B
B
B
B
B
EP globale rinnovabile:
117.00 kW h/m² anno
EP invernale del fabbricato:
EP estiva del fabbricato:
Anno di costruzione:
1967
Riscaldamento:
Autonomo
Tipo impianto:
A pavimento
Tipo alimentazione:
Pannelli

Ti interessa visionare l'immobile?

Fissa un appuntamento  Fissa un appuntamento

Richiedi informazioni

* Questi campi sono obbligatori

Calcola il tuo mutuo

Semplice e senza impegno
Anticipo

( % )
Mutuo

( % )

pochi semplici passi

inserisci i tuoi dati
Questionario completato
Grazie per aver richiesto un appuntamento senza impegno con un nostro Consulente del Credito e Assicurativo.

Hai inserito correttamente tutti i dati necessari e a breve riceverai una e-mail con un link da convalidare per inviare i tuoi dati.
Affiliato
Iacolare Alessandro D.I.
P.zza San Pietro, 2 21040 Uboldo (VA)

Il nostro staff


  • Arianna Botta
    Collaboratrice

  • Giovanni Iacolare
    Responsabile

  • Alessandro Iacolare
    Affiliato
P.zza San Pietro, 2 21040 Uboldo (VA)
Zona: Uboldo-Origgio
Mostra su mappa
Orari: Dal Lunedì al Venerdì dalle ore 09:00 alle ore 12:30 e dalle ore 14:30 alle ore 20:00. Il Sabato dalle ore 09:00 alle ore 12:30 e dalle ore 14:30 alle ore 18:00, la Domenica chiusi.
Affiliato
Iacolare Alessandro D.I.
P.zza San Pietro, 2 21040 Uboldo (VA)

2025 Tecnocasa Franchising S.p.A. - P. IVA 08365160152 - Via Monte Bianco 60/A 20089 Rozzano (MI). Ogni agenzia ha un proprio titolare ed è autonoma. Privacy policy | Policy utilizzo | Cookie policy